-
오래된 집이 말하는 건축의 언어, 구의살롱 이야기 STPMJ건축 사례 2025. 7. 22. 07:54

©Bae Jihun 80년대 건물의 재해석, 그 사이의 시간들을 드러내다
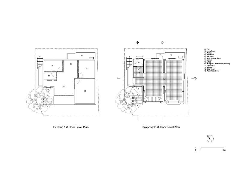
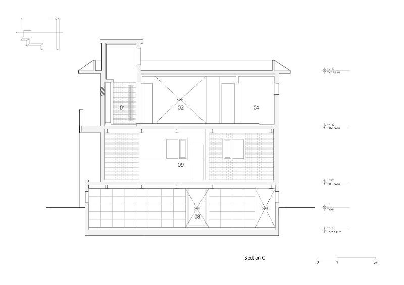
서울 광진구 구의동에 위치한 SALON GUUI는 1980년대 지어진 다가구 주택을 개조해 완성된 복합공간이다. 반지하부터 2층까지 세 개의 층으로 구성된 이 건물은, 기존의 주거 기능을 재배치하여 반지하와 1층은 오피스로, 2층은 주거 공간으로 구성했다. 특히 1층은 오피스와 주거를 연결하는 '살롱' 공간으로 재탄생하며 이 프로젝트의 상징이 되었다.


©Bae Jihun
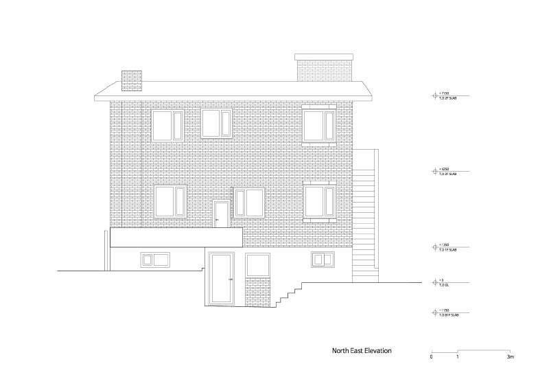
기억을 품은 건축적 디테일의 복원과 존중SALON GUUI는 단순한 리모델링이 아닌, 한국 80년대 건축의 흔적을 존중하고 보존하는 방식을 택했다. 독립적인 출입구 구조, 장식적인 콘크리트 처마, 베이 윈도우, 화강석 기단 등 당시를 대표하는 건축 요소들이 그대로 유지되거나 정교하게 복원되었다.
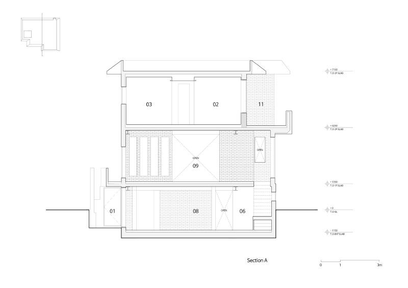
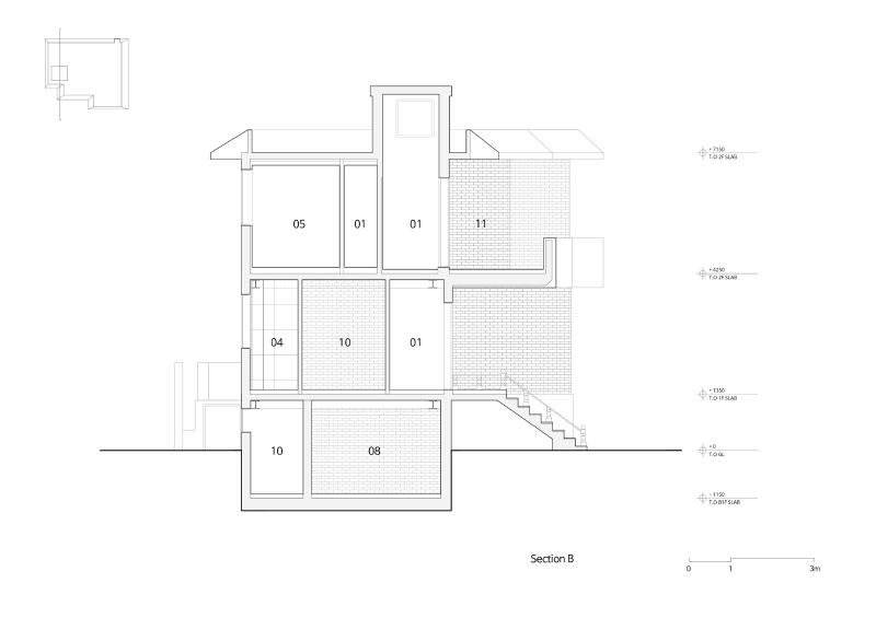
- 동선과 구조: 오피스의 중심인 반지하와 살롱 역할의 1층은 슬라브를 절단하여 자연스럽게 연결되며, 이는 사람과 공간의 관계를 새롭게 정의한다.
- 건축의 시간성: 1층 일부 벽면과 슬라브는 건물의 증축·개보수 이력을 보여주는 '건축의 단면도'처럼 연출되었다. 과거-현재-미래가 공존하는 서사를 가진 공간이다.



©Bae Jihun 새로운 감각으로 덧입힌 80년대 스타일
외관은 기존 벽돌과 유사한 색감의 모르타르를 덧씌워 통일감을 주었고, 계단 손잡이는 유광 컬러 스테인리스 패널로 감싸 세련된 감성을 더했다. 실내 마감은 극도로 절제되어 있어 기존 구조의 흔적과 재료의 질감이 오롯이 드러난다.
- 살롱의 바닥 마감: 150x150mm 황동 그리드에 블랙 콘크리트를 채운 실험적인 방식으로, 오리지널 테라조 바닥의 재해석이라 할 수 있다.
- 미니멀한 마감 전략: 공간 곳곳에 드러나는 원재료는 ‘숨김없는 솔직함’을 통해 건축적 정서를 이끌어낸다.

©Bae Jihun 






©Bae Jihun 
©Bae Jihun
SALON GUUI가 제안하는 리모델링의 새로운 시선stpmj는 이 프로젝트를 통해, 노후 주택의 외형을 없애고 새로운 스타일로 재구성하는 방식이 아니라 ‘존재했던 시간’을 품고 드러내는 리모델링 전략을 제시한다. 이는 도시 곳곳에 남아 있는 80년대 건축물에 새로운 가능성을 제시하며, 건축이 시간과 이야기를 담는 그릇이 될 수 있음을 증명한다.
프로젝트 정보 요약
프로젝트명 SALON GUUI 위치 서울시 광진구 구의동 건축가 stpmj 완공 2021년 건축 유형 리노베이션 / 복합주거 (오피스 + 주택) 주요 콘셉트 건축적 시간의 누적, 80년대 건축요소 존중, 미니멀한 마감 전략 

©stpmj 
©stpmj 







©stpmj 

©stpmj '건축 사례' 카테고리의 다른 글
서울특별시 건축상 대상 THISISNEVERTHAT OFFICE | 계단에서 시작된 새로운 코어의 건축 실험 | 푸하하하 프렌즈 (0) 2025.08.02 강남 언덕 위 공동체 실험 : 자곡 힐스테이트 - 타워 블록 하이브리드 (0) 2025.07.15 기억과 상징, 지속가능 건축의 교차점 — 남산의 안중근 기념관| D·LIM Architects (0) 2025.07.13 발코니로 완성되는 도시의 풍경, 테트리스 빌딩 | 유현준 건축가 (0) 2025.07.08 돌 속에서 피어난 도시의 풍경, 갤러리아 광교 | OMA (0) 2025.07.03 인천의 예술적 파사드, MVRDV의 파라다이스 시티 'The Imprint' (0) 2025.07.02 초대받는 교회, 세종산성교회 | 유현준 건축가 (0) 2025.07.01 공원 속 미술관, 북서울미술관 | 삼우종합건축사사무소 (0) 2025.06.21