-
📍 파주 ‘미메시스 전시관’ – 시자의 건축, 책과 자연의 교감건축 사례 2025. 6. 11. 09:47
파주 ‘미메시스 전시관’ – 알바로 시자의 고양이 같은 건축 🐾
경제도시 파주 북쪽, 책의 도시로 알려진 파주출판도시에 숨어 있는 ‘미메시스 전시관 (Museum Mimesis)’. 이곳은 포르투갈의 거장 알바로 시자(Álvaro Siza) 가 2006년 설계를 시작해 2009년 완성한 전시 공간으로, 전시관이라는 형식 너머 ‘찰나의 순간을 환영하는 조각’ 같은 공간 경험을 선사합니다.
🏛️ 알바로 시자 – 풍경과 시를 짓는 건축가
🌿 서론건축은 때로 시와 같다.단어를 적게 쓸수록 더 깊이 울리는 시처럼,단순한 형태일수록 더 많은 이야기를 품을 수 있다.**알바로 시자(Álvaro Siza Vieira)**는공간을 통해 말하지 않고,침묵으
archi.all-find.kr

🐱 고양이 한 마리가 품은 알바로 시자의 감성
- “미메시스는 고양이다”: 시자는 현장에서 고양이가 몸을 말고 기지개를 켜듯 전개된 형상에서 바로 영감을 얻었습니다. 그의 첫 스케치는 ‘거실에서 스트레칭하는 고양이’ 같았다고 전해지며, 이것이 건축의 시작이자 완성입니다.
- 이 단순하면서도 깊이 있는 순간은 건축적 결정 하나하나에 스며들어, 공간 전체가 ‘고양이 같은 유연함’과 ‘예술적으로 숙성된 감각’을 지니게 합니다.
🍃 책, 빛, 공간이 교차하는 ‘미메시스’

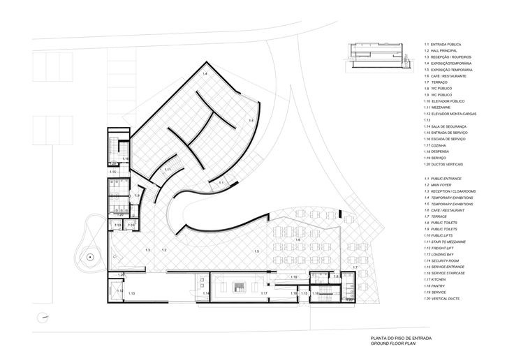
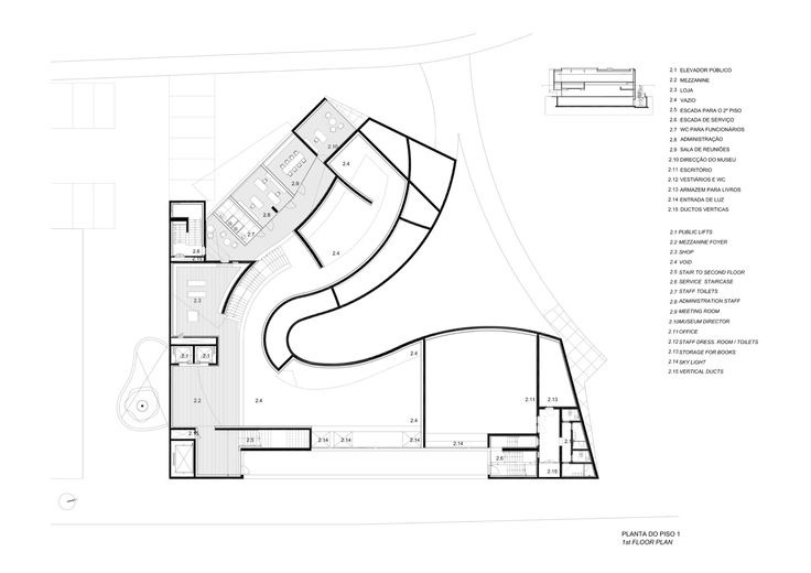
©주민욱 - 흰색 콘크리트로 감싼 곡면 구조
전시관의 외관은 곡면과 직선이 어우러진 형태로, 부드러움과 견고함을 동시에 표현합니다. 이 콘크리트 외관은 내부 중정(yard)을 감싸며, 층별로 다양한 전시 경험을 제공합니다.

- 중정이 중심이 되는 동선 구성
지하에는 아카이브와 기술 설비, 1층엔 리셉션·카페·임시전시 공간, 메자닌에 행정·샵, 꼭대기층엔 전시 공간이 배치되어 있습니다. 중앙의 중정을 중심으로 공간이 유기적으로 연결되고, 상·하부 채광을 적절히 조절합니다.



- 자연광 활용한 전시 공간
넓은 상부 채광창은 은은한 자연광을 끌어들여 회화나 설치 작품 감상에 적합한 분위기를 조성합니다. 낮과 햇살 변화에 따라 공간에 시간의 깊이가 더해집니다.
🏞 파주의 풍경과 어우러진 공간 언어
- 책 출판도시 맥락과의 조화
파주 북카페 단지 내에 위치한 전시관은 주변 출판·문화 공간과 자연스럽게 어우러집니다. 도시와 교외, 내부와 외부 사이의 경계를 흐려 신뢰감 있는 방문 경험을 선물합니다.








🛠 주요 제원 한눈에
항목내용위치 경기도 파주시, 북카페 단지 내 건축가 Álvaro Siza, Carlos Castanheira, 김준성 (현장 감독) 규모 대지면적 4,650 ㎡ / 건축면적 1,300 ㎡ / 연면적 4,000 ㎡ 구조 및 재료 철근콘크리트 / 백색 콘크리트 외관 공정 2006–2009년 완공 프로그램 지하 아카이브·기계실, 1층 카페·리셉션·전시, 메자닌 행정실·샵, 2층 전시실
✨ 마무리하며…
미메시스 전시관은 ‘책을 읽는 공간이자, 경계를 흐리는 건축’입니다.
흰 콘크리트 건조물 안팎으로 스며든 자연빛과 공기가 어우러지며, 책과 예술에 집중하게 만드는 숨 고르기 같은 장소죠.파주 출판도시를 찾는다면, 북카페 사이에 살포시 놓인 이 시자의 공간에서 천천히 책장을 넘겨보는 여유.
어쩌면 그 시간이야말로 가장 ‘미메시스’한 경험이 아닐까요?
'건축 사례' 카테고리의 다른 글
수평선에 잠긴 집, 지평집 | 남해 바닷가의 건축적 겸손 (0) 2025.06.19 자연을 품은 미술관, 뮤지엄 SAN | 안도 다다오 × 건축으로 사색하기 (0) 2025.06.19 리움미술관: 세계적인 건축가 3인이 만든 감각적 건축의 하모니 (0) 2025.06.13 🏫 이대 ECC, 땅속에 피어난 ‘빛의 계곡’ – 도미니크 페로 (0) 2025.06.12 동대문디자인플라자(DDP) | 자하 하디드의 곡선이 그린 미래도시의 풍경 (0) 2025.06.10 도심 속 열린 광장, 아모레퍼시픽 본사 | 데이비드 치퍼필드 (0) 2025.06.07 강릉 솔올미술관 | 마이어 파트너스의 한국 첫 미술관 건축 (0) 2025.06.05 📸 서울시립 사진미술관 Seoul Museum of Photography | 믈라덴 야드리치 × 윤근주 (0) 2025.05.31