-
📦 서울 최초의 ‘보이는 수장고’ - 서리풀 보이는 수장고 국제 설계 공모건축 공모전 2025. 4. 25. 16:24
서리풀 보이는 수장고 국제설계공모, 그 결과와 의미
서울 서초구 한복판, 옛 정보사 부지에 국내 최초의 **‘개방형 미술관형 수장고’**가 들어선다.
기존의 수장고(보관창고) 개념을 넘어, 소장품의 보존·복원 과정마저 전시 콘텐츠로 승화시킨 공간.
서울시가 야심차게 추진한 이 프로젝트는 2023년 국제지명설계공모를 통해
세계적인 건축가 7인의 제안을 받은 끝에, 드디어 당선작이 공개됐다.🎖️ Herzog & de Meuron, 최종 당선

🧱 당선자는 세계적 건축사무소 Herzog & de Meuron(헤르조그 & 드 뫼롱).
테이트 모던, 베이징 올림픽 주경기장 등을 설계한 이들은
서울의 중심에서 또 하나의 상징 건축을 탄생시킬 준비를 마쳤다.
📐 설계 핵심 개념
"예술품은 숨겨야 할 대상이 아니라, 함께 나누고 경험해야 할 공공의 자산이다."
HdM의 제안은 단순히 ‘보관’에 머물지 않는다.
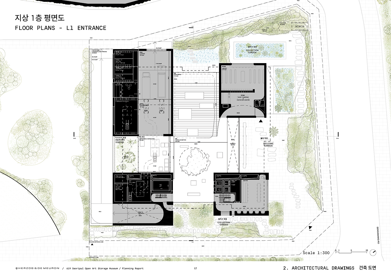
시민이 ‘보는’ 수장고, 걷고 머무는 수장고, 경험하는 수장고를 목표로 한다.주요 특징 정리:
- 🌀 중심을 관통하는 고깔형 중정
→ 내부를 층층이 개방해, 1층에서도 고층 수장품을 관람 가능하게 함

- 🌿 1층 4개의 공개 정원
→ 발굴된 암석을 활용한 자연 정원. 누구나 쉬어갈 수 있는 열린 공간


- ☕ 6층 전면 유리 전망 카페
→ 서울 도심과 한강을 내려다보는 휴게 공간


- 🌞 태양광 + 반투명 입면 시스템
→ 친환경 설계로 지속가능성 확보


- 🎭 야외계단형 강당
→ 서리풀 언덕과 조화를 이룬 문화행사 공간


















📍 부지와 공간 정보
- 위치: 서울시 서초구 서초동 1735 (옛 정보사 부지)
- 대지면적: 5,800㎡
- 연면적: 약 19,500㎡
- 규모: 지하 2층 / 지상 7층
- 예정 개관: 2028년
- 총 사업비: 약 1,260억 원 (기부채납 포함)
- 주최: 서울특별시
👥 함께 경쟁한 건축가들






참가자소속국가자크 헤르조그 Herzog & de Meuron 🇨🇭 노먼 포스터 Foster + Partners 🇬🇧 킴 허포스 닐센 3XN Architects 🇩🇰 위니 마스 MVRDV 🇳🇱 조민석 Mass Studies 🇰🇷 유현준 유현준건축사사무소 🇰🇷 임재용 OCA건축사사무소 🇰🇷 이들은 2023년 12월 DDP에서 직접 프레젠테이션을 진행하며 시민들과 소통했고,
공공건축의 투명한 설계절차에 대한 모범을 보여주었다.
🧠 심사평
“대지와 주변 환경을 명료하게 읽고,
단순하면서도 상징적인 형태로 제안한 점이 돋보인다.”– 서리풀 수장고 심사위원단
단계별 관람 동선을 가진 고깔형 중정,
정원과 도심이 조화되는 열린 입면,
기존 미술관과 차별화된 수장 공간 구성.
심사위원단은 이 점들을 높이 평가했다.
🏗️ 향후 일정
- 2024년: 기본 및 실시설계 착수
- 2025~2027년: 공사 진행
- 2028년: ‘서리풀 보이는 수장고’ 개관 예정
서울은 조용히, 그러나 분명하게
새로운 문화 인프라의 지형도를 다시 쓰고 있다.
✍️ Editor’s Note
‘보이는 수장고’라는 개념은 단순한 설계 이상의 혁신이다.
예술과 일상, 보관과 공개, 전문성과 공공성이
함께 숨 쉬는 공간을 서울 한가운데에서 만나게 될 날이 머지않았다.'건축 공모전' 카테고리의 다른 글
서울 노들섬 국제건축공모-사운드웨이브가 그린 도시의 쉼터 - 토마스 헤더윅 (0) 2025.04.21 - 🌀 중심을 관통하는 고깔형 중정